我的新家经过4个月这样装修完毕啦,全部都是自己弄的,自认为装修得还是蛮有档次的,哈哈!其实最得意的是客厅阳台的装修,看腻了别人家千篇一律的推拉门阳台,我灵机一动在阳台上做了半边加高,没想到邻居见了后纷纷夸我有创意,他们个个羡慕得不得了,太有面子啦,给大家晒一晒我的新家吧!


先给大家晒一晒硬装结束打扫完的照片,然后再看家具入场的新家样子!

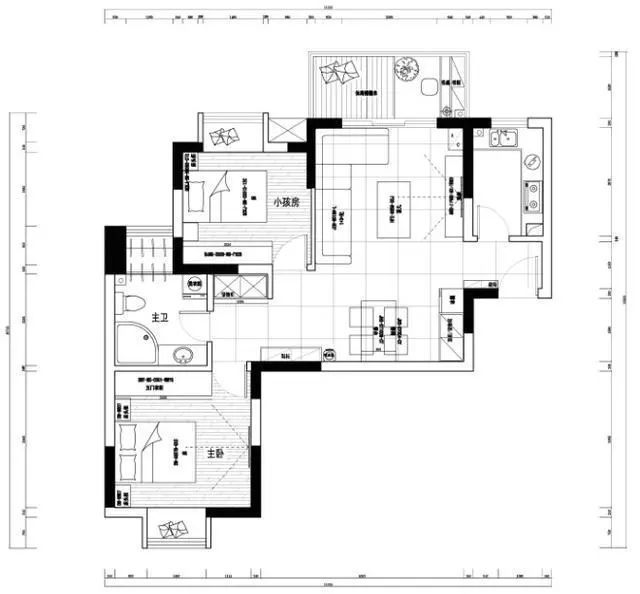
玄关鞋柜,美观又实用,收纳功能超级强大呢!

电视背景墙,很时尚吧?背后就是厨房啦!



阳台处这个半边加高就是我的得意之作,哈哈!邻居们看了都羡慕得不行,纷纷说回家照做,太有面子啦,哈哈!

过道处还做了柜子,可以装下很多东西呢!
接下来给大家晒一晒家具入场后的新家!大家觉得靓不靓?


客厅,沙发不错吧?花了近2万块钱呢!



蓝色的儿童房,还装了飞机灯,儿子表示很喜欢!


主卧,定制的衣柜,这张大床太舒服啦,躺下去都不想起来了!