原标题:【住宅】大观自成 | 柏丽之家 ? 未来在这里遇见
著名设计师连自成擅长融合中西文化和各类风格,专注于不同功能的室内设计。此次,他挑战的是在一个2300平米的商业空间内运用其全系列产品设计一处170平米的家。如何能在华丽丽的商业场所内打造令人心动的家?连自成有其独特的理解和认识:未来可以在这里遇见。


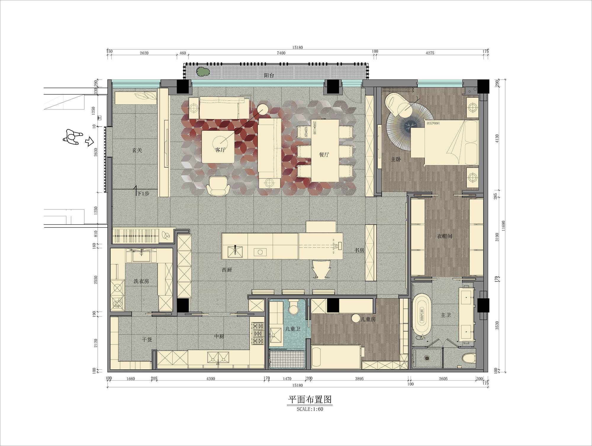
这个家位于上海宜山路德国橱柜品牌柏丽的整体家具定制中心内,突破了原有展厅以局部厨房概念展示更多产品的方式,将客厅、厨房、卧室、书房等实际生活场景融入其中,给人完整的居家体验。连自成面对这样一个设计,显得很兴奋:“很高兴能够做这个特别的设计,要在一个商业空间内创造打动人心、让人产生共鸣的居家空间,就必须做一些全新的东西,应该是一种未来的趋势或潮流的诠释,去传达一种生活方式,展现未来的生活形态。”




在这个理念的引领下,功能的规划布局由主人的生活行为和设计师的潜在引导所决定。在过去的空间设计中,人们强调独立性、私密性,强调个人空间,因此空间的规划也以此为中心来划分明晰的功能区。但随着电子科技的介入,设计师发现,不同功能区的划定让家庭成员变得疏离起来,沉浸在各自的小天地内却忽略了家庭成员间的沟通和交流。如何设计才能够让家变得温暖起来,增进家庭成员情感的传递,增加互动交流是连自成设计本案的主旨,也是他对于未来美好生活形态的理解。



“重新回到客厅吧!”这是整个空间规划的核心,把客厅作为家庭生活的联结点,打开公共区域、规划不同功能,让家人从书房、厨房、卧室里都走出来,聚到了一起。刚至玄关,就能透过温暖的壁炉隐约看到客厅内的情形,会客区域与餐厅、西式厨房连成一片,自由开放的不仅是空间,更是视觉和心灵的感受。阅读工作区的设计很特别,书桌与厨房中央岛相接,把移动办公的男主人和负责烹饪的女主人巧妙地安排在了同一空间内,这是相互欣赏,更是快乐分享。而这里的空间也不仅仅只是看到的功能,而是通过一些细节的设计让其在不同时段展现不同的生活情趣。在西厨内,配合特别设计的小超市,白天,这里是厨房的一部分,还是阳光早餐、惬意下午茶的主要阵地,晚上则呈现出酒吧的概念,在灯光的营造下充满了浪漫的氛围。不同情境下同一场景呈现出的不同形态,让居者感受的是充满变化的情趣感,也让人更愿意在这里长时间停留,重新找回在一起的感觉。









而在空间规划的基础上,软装在其中担任的灵魂角色不可小觑,直接传递着空间的情感,展现着生活的痕迹,让整个家变得具有趣味性和个性化。本案采用柏丽品牌全系列产品作为设计主材,因此在主人角色设定上也以此为核心,设定男主人为德国建筑师、女主人为知性的上海女子。女主人感性,喜欢书籍和花鸟,偶尔摆弄的中式古玩让空间沉淀出时间的印迹;男主人理性,喜欢摄影和旅行,几款收藏的经典家具呈现出历久弥新的时间的美感。不同性格特点和喜好习性的表达和延展,是中西观念的碰撞,更是中国江南文化和西方工业设计的融合。现代西式的家具形态和中式婉约的装饰艺术,在同一空间内遥相呼应,让人产生无限遐想,愉悦视觉,更触碰心灵,如此组合,生活的精彩也不言而喻。










当然,生活本是平凡而琐碎的,空间形态完美呈现的背后,还需要有强大的功能设计做支撑。连自成即是如此用心的设计师,在公共区域内,大量运用了几何风格的柏丽橱柜,将储藏功能隐藏在线条背后,满足使用的实际需求。只是,柏丽进口定制板材的实施还需要靠设计师的整体精准把握和思考,在看似随意的设计背后掌握尺寸和模具化概念,如此呈现出的室内空间,才是理想规划下的个性设计,也是室内设计进入工业时代全屋装修的全球化趋势。










人生就是一场未知目的地的旅行,更多的时候,我们并不知道自己接下来会遇见怎样的未来。旅途乏了,家就是避风的港湾、心灵的休憩地。正是在这里,我们憧憬未来,也遇见了未来……
大观自成 | 柏丽之家


大观·自成国际空间设计是由来自台湾台北资深设计师所组成,为追求高品质之室内设计、软装设计而成立。
公司总部位于上海,由旅居英国留学归来设计师--连自成先生于1999年创立,由优秀的台湾、大陆的资深设计师组成。 公司设计团队能对各项目流程彻底理解,提供前瞻性且合理之创意方案,秉执著精准的设计线条,贯穿空间,以创造性的设计理念革新即有的传统设计,为人称道赞许。从西方历史经验中吸取精华,融入古典元素的现代手法,从心理、感观、空间规划和配置上体现出现代豪宅品位的奢华,即有着自己独特的设计风格的诠释,以及细节的专注。
公司本着“优质设计”的宗旨,以精品(ELITE)、建筑感(ARCHITECTURE)、艺术性(ARTISTIC)、客制化(Bespoke )为设计的着准点,强调文化、品质的完美融合,倡导更优质的生活设计态度。从创立至今,已在五星级酒店、豪宅、会所、样板房、企业总部、商业空间等中树立了良好口碑,赢得多个高端地产开发商的认可。
项目地址 | 宜山路320号
设 计 师 | 连自成
大观自成设计近期作品

▲旭辉铂悦西郊别墅(点击图片进入链接)

▲台北美丽殿(点击图片进入链接)

▲绿地海珀玉晖样板房(点击图片进入链接)
供稿/ 大观?自成国际空间设计
点 击 左 下 角 原 文 链 接 可 进 入 官 网
未 经 允 许 请 勿 转 载 到 其 他 公 众 号
请 给 该 公 众 号 留 言 获 取 内 容 授 权返回搜狐,查看更多